
Trois pièces avec coin montagne dans Chalet - Pralognan - Le Raffort
Prix : Nous contacter
TROIS PIECES "coin montagne dans chalet" - PROGRAMME NEUF A 200 m
DU CENTRE !
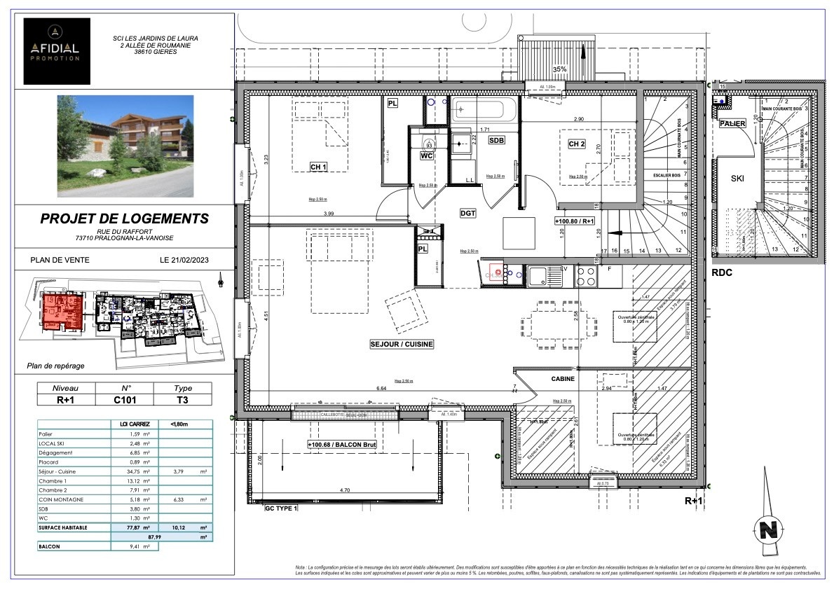
Très beau volume pour ce trois pièces avec son coin montagne de 77.87 m² + 10.12 m² < 1.80 m situé au premier étage d'un chalet de bon standing, livraison prévue printemps 2024.
Vous disposerez d'une entrée indépendante réservée aux deux appartements de ce chalet ainsi que de votre casier privatif.
Cet appartement se compose d'une entrée, une première chambre, une salle de bain, WC séparé, une seconde chambre avec très grand volume, une cuisine entièrement équipée, un coin montagne et une pièce à vivre (salon et séjour) qui donne sur un balcon de 9,41 m² exposé sud/ouest pour profiter du repos dans un cadre de montagne idyllique.
Vous rejoindrez rapidement le cœur du village mais aussi le téléski permettant d’arriver au départ des remontées mécaniques.
- résidence de 13 logements avec ascenseur du T1 au T4 de 37,69 m² à 89 m².
- garages au sous-sol.
- chalet divisé en 2 appartements de type T3.
Belles prestations : les appartements sont livrés avec une cuisine équipée, meubles de salle de bain, murs en bois derrière la tête de lit et sur un mur des séjours et plâtre, casiers à skis.
Possibilité d’acquerir un garage ou une place de parking.
Main Features :
| Property reference: | CH - 076-C101 |
| Living space | 87.99 m² |
| Surface Carrez law | 77.87 m² |
| Number of rooms | 3 |
| NB of bedrooms | 2 |
| NB of bathrooms | 1 |
| Floor | 1 / 2 |
La résidence :
| Lift | Non |
| Property in condominium | Oui |
| Joint ownership in judicial procedure | Non |
| Number of lots in the condominium | 15 |



